leider nicht mehr verfügbar
Weitersuchen?
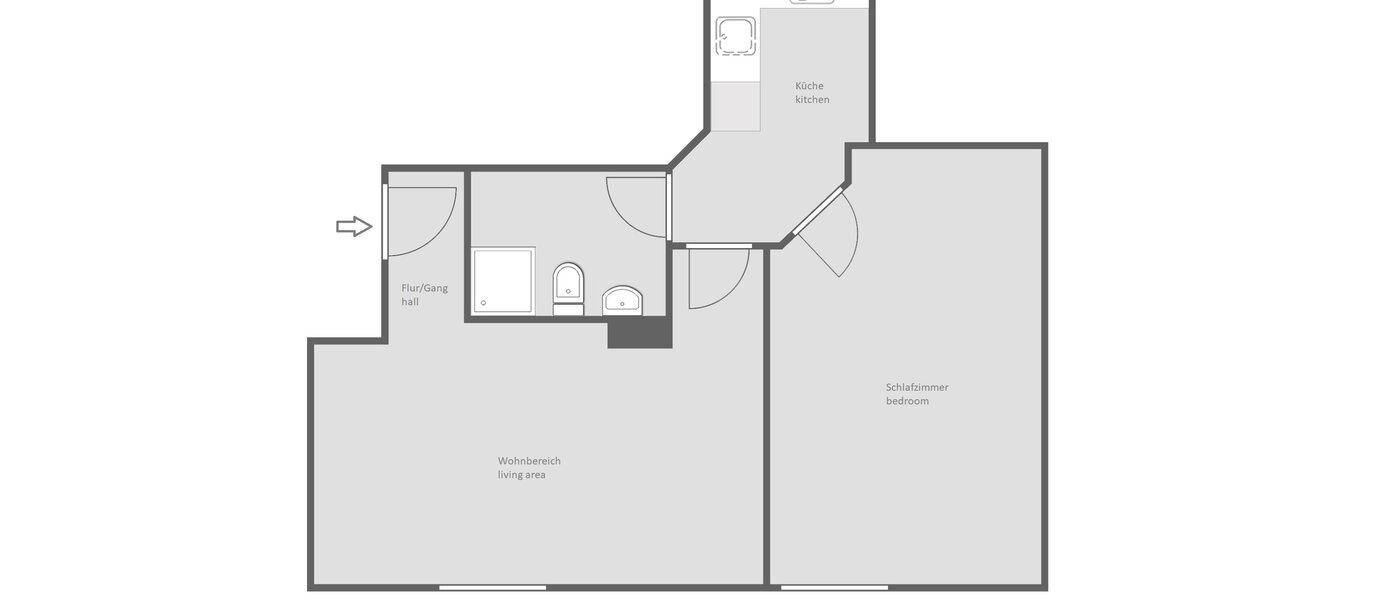
2-Zimmer Wohnung in Puchheim - westlich von MUC
Umgebung
Wohnen in Puchheim
Einkaufsmöglichkeiten:
Apotheke, Bäcker, Drogerie, Metzger, Getränkehändler, Obst- und Gemüsehändler, Feinkostgeschäft, Boutiquen, Reinigung, Supermarkt
Essen und Trinken:
Restaurants, Pizzerien, Cafés, Stehcafes
