Ihre Kontaktperson
Mavie Datz
Mavie Datz
Immobilienberaterin | Verkauf
+49 89 340 823-543
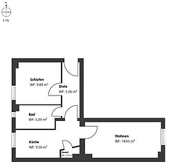
Zimmer
2
Wohnfläche ca.
44,18 m²
Kaufpreis
€ 419.000,-
Provision
2,975% inkl. 19% MwSt.
Lage
81369 München

Sendling: Hochwertig renovierte 2-Zimmer Wohnung - in Kürze frei


Kennung:
70381
Objektart:
Erdgeschosswohnung
Wohnfläche ca.:
44,18 m²
Baujahr:
1900
Wohngeld:
158 €
Zustand:
Modernisiert
Schlafzimmer:
1
Badezimmer:
1
Keller:
Ja
Einbauküche:
Ja
Etage:
EG
Bodenbelag:
Fliesen, Parkett

Provision

Käuferprovision: 2,975% inkl. 19% MwSt.

Top-Highlights


  • WG geeigneter Grundriss
  • Ansprechend renoviert
  • Große Einbauküche

Beschreibung


In einem gepflegten Altbau aus dem Jahr 1900 liegt diese attraktive 2-Zimmer-Wohnung im Erdgeschoss, die durch ihren WG-geeigneten Grundriss und klassischen Altbaucharakter überzeugt. Im Jahr 2023 wurde die Wohnung hochwertig renoviert: Die Elektrik wurde erneuert, neue Heizungsrohre verlegt sowie Wände und Decken neu verputzt und gestrichen. Hochwertiges deutsches Eichen-Echtholzparkett und großformatige italienische Fliesen unterstreichen den modernen Anspruch. Ergänzt wird die Ausstattung durch ein zeitgemäßes Bad mit Regendusche, eine neue Küche sowie ein maßgefertigtes Echtholz-Hochbett mit außergewöhnlich viel integriertem Stauraum.

Zwei gut geschnittene, separat begehbare Zimmer bieten flexible Nutzungsmöglichkeiten als Wohn-, Schlaf- oder Arbeitsbereich und machen das Objekt sowohl für Paare als auch für Wohngemeinschaften interessant.

Die separate Küche ist mit einer Einbauküche ausgestattet und fügt sich funktional in das Wohnkonzept ein. Zusätzlicher Stauraum entsteht im Eingangsbereich durch Platz für eine Garderobe. Die teilmöblierte Übergabe ermöglicht einen unkomplizierten Einzug mit Raum für individuelle Gestaltung.

Abgerundet wird das Angebot durch einen Kellerraum mit eingebauten Regalsystemen.

Ausstattung


    • Geschmackvolle Teil-Möblierung
    • Garderobe im Flur
    • Küche mit allen notwendigen Elektrogeräten inkl. Waschtrockner
    • Esstisch mit Stühlen im Wohnzimmer
    • Wohnzimmer mit 3-Sitzer Couch und Kommode
    • Schlafzimmer mit Designer Hochbett und integrietem Bürobereich
    • Großzügiger Kleiderschrank
    • Modernes Tageslichtbad mit Regendusche
    • Großformatige italienische Fliesen im Bad
    • Hochwertiges Eichenparkett
    • Bose Soundanlagen
    • Beheizung durch Gas Therme, Fernwärme in 2035
    • Zusätzlicher Stauraum im Keller

    Das Apartment wird Teil-Möbliert verkauft. Das abgebildete Mobiliar gehört zur Ausstattung und ist im Kaufpreis enthalten.

    Lage


    Die Leipartstraße liegt mitten im Herzen von Sendling. Der südwestlich von München gelegene Stadtteil wird besonders für seine idyllische und familienfreundliche Atmosphäre, die grüne Umgebung und die Nähe zur Isar und zur City geschätzt. Das von der Natur geprägte Stadtviertel ist besonders bekannt für den Münchner Tierpark Hellabrunn und die weitläufigen Grünanalagen am Isar-Flussufer, einschließlich des beliebten Naherholungsgebiets Flaucher. Auch der nahegelegene Westpark sowie der direkt vor der Haustür gelegene Sendlinger Park laden zum Spazieren und Erholen ein. Weitere Freizeitmöglichkeiten werden durch das Kletter- und Boulderzentrum, das Südbad und den isarnahen Golf Club geboten.

    Über die S-Bahn-Station „Mittersendling“ – nur 4 Gehminuten entfernt - besteht eine hervorragende Anbindung an das öffentliche Verkehrsnetz, sodass die Münchner Innenstadt in wenigen Minuten zu erreichen ist. An den Münchner Marienplatz gelangen Sie in ca. 15 Minuten. Die Buslinien 53 und 134 sind in weniger als 5 Minuten fußläufig erreichbar. Die Buslinie 53 führt über den Rotkreuzplatz und endet in Schwabing an der Münchner Freiheit. Über die Linie 134 erreichen Sie innerhalb von 17 Fahrminuten den größten Volksfestplatz Münchens: die Theresienwiese. In nur 9 Gehminuten erreichen Sie den "Harras", das bedeutendste Stadtteilzentrum im Herzen Sendlings und einer der wichtigsten Verkehrsknotenpunkte Münchens. Hier können Sie auf großzügig angelegten Sitzflächen sowie am Brunnen oder unter schattigen Bäumen umgeben von architektonisch imposanten Häuserfassaden der Jahrhundertwende aus Jugendstil und Neurenaissance ein wenig entspannen. Rund um den Harras gibt es zahlreiche Szene Restaurants und Einkaufsmöglichkeiten. In der Adventszeit findet hier ein Weihnachtsmarkt statt.

    Einkaufsmöglichkeiten für den täglichen Bedarf, Super-, Bio- und Drogeriemärkte, Apotheken, Ärzte und Restaurants befinden sich in Ihrem Umkreis. Auch der Sendlinger Wochenmarkt am Harras und das einzigartige Wirtshaus „Augustiner Schützengarten“ ergänzen das vielfältige Angebot in nächster Nähe. Kindergärten, Kinderkrippen und Grundschulen befinden sich in unmittelbarer Nachbarschaft. Auch die weiterführenden Schulen, wie beispielsweise das Dante oder das Klenze Gymnasium, sind mit den öffentlichen Verkehrsmitteln oder zu Fuß innerhalb von 15 Minuten gut zu erreichen.

    Herzlich Willkommen in Sendling!

    Energieangaben


    Heizungsart:
    Gas Heizung
    Energieeffizienz-Klasse:
    F
    Energieverbrauchs-Kennwert:
    185,6 kWh/(m²*a)
    Wesentliche Energieträger:
    Gas
    Energieausweis-Typ:
    Verbrauchsausweis
    Baujahr:
    1900

    Ermitteln Sie Ihren persönlichen Zinssatz


    Sonstiges


    Die teilmöblierte Wohnung wird derzeit vom Eigentümer bewohnt und wird zum 01.02.2026 frei. Die Warmmiete betrug zuletzt 1.750,-€ (inkl. NK, Strom und Internetflatrate). Sie ist bestens geeignet als Kapitalanlage oder auch zur Eigennutzung.

    Als führende Agentur für möblierte Vermietung auf Zeit steht Mr. Lodge den neuen Eigentümern oder Kapitalanlegern mit Beratung, Vermietung und Dienstleistungen rund um die Immobilie, gerne zur Verfügung.

    Mr. Lodge bietet dieses Apartment im Allein-Auftrag an.

    Bitte beachten Sie, dass das digitale Exposé eine erste Übersicht bieten soll und dass alle Angaben auf Auskünften des Eigentümers bzw. Auftraggebers beruhen und wir hierfür keine Haftung übernehmen.

    Exposé anfordern


    Mr. Lodge GmbH verarbeitet die von Ihnen zur Verfügung gestellten personenbezogenen Daten gemäß der Mr. Lodge-Datenschutzerklärung.

    Cookie Hinweis
    Diese Webseite verwendet Cookies, um Inhalte zu personalisieren, Werbungen anzupassen und zu messen und eine sichere Erfahrung zu bieten. Indem Sie die Schaltfläche "Alles zulassen und fortsetzen" betätigen, stimmen Sie zu, dass Daten über Cookies gesammelt werden.
    Bitte aktivieren Sie Cookies in ihren Browsereinstellungen!