Ihre Kontaktperson
Julia Fröhlich
Julia Fröhlich
Immobilienberaterin | Verkauf
+49 89 340 823-552
Zimmer
4,5
Wohnfläche ca.
117,39 m²
Kaufpreis
€ 830.000,-
Provision
2,975% inkl. 19% MwSt.
Lage
81739 München

Waldperlach: Stilvolle Maisonette über drei Ebenen mit sonnigem Südwest-Garten- frei


Kennung:
70295
Objektart:
Maisonettewohnung
Wohnfläche ca.:
117,39 m²
Baujahr:
1998
Nutzfläche ca.:
153,16 m²
Wohngeld:
478 €
Zustand:
Gepflegt
Schlafzimmer:
3
Badezimmer:
1
Gäste-WC:
Ja
Anzahl Terrassen:
1
Keller:
Ja
Einbauküche:
Ja
Bodenbelag:
Parkett, Fliesen

Provision

Käuferprovision: 2,975% inkl. 19% MwSt.

Virtueller Rundgang


Top-Highlights


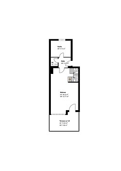
  • Großzügige Maisonette-Wohnung über 3 Etagen (EG, OG, UG)
  • Sonniger Garten mit Südwest-Ausrichtung
  • Helles, geräumiges Wohnzimmer mit Platz für Essbereich

Beschreibung


Diese außergewöhnliche Maisonette-Wohnung erstreckt sich über drei Etagen – Erdgeschoss, Obergeschoss und Untergeschoss – und verbindet komfortables Wohnen mit einem großzügigen Raumangebot. Die gepflegte Immobilie präsentiert sich in einem sehr guten Zustand und ist sofort bezugsbereit. Die Wohnfläche beträgt über 117 m², die gesamte Wohn- und Nutzfläche erstreckt sich über mehr als 153 m².

Im Erdgeschoss empfängt Sie ein weitläufiges Wohnzimmer mit edlem Parkettboden, das ausreichend Platz für einen Wohn- und Essbereich bietet. Von hier aus gelangen Sie direkt in den nach Südwesten ausgerichteten Garten – ein ideales Refugium für sonnige Stunden, gesellige Abende oder entspannte Momente im Freien. Die moderne Einbauküche sowie ein Gäste-WC runden das Erdgeschoss harmonisch ab.

Im Obergeschoss befinden sich drei helle Schlafzimmer sowie ein stilvolles Badezimmer, die einen optimalen Rückzugsraum für die ganze Familie schaffen.

Ein besonderes Highlight ist der großzügige Hobbyraum im Untergeschoss mit ca. 29 m², der sich vielseitig nutzen lässt – ob als Fitnessraum, Heimkino oder Home-Office.

Zur Wohnung gehört zudem ein Duplex-Stellplatz (zzgl. 15.000 €), der für komfortables Parken sorgt.

Dank der geschmackvollen Ausstattung und des gepflegten Zustands können Sie sofort einziehen und sich rundum wohlfühlen.

Diese Maisonette-Wohnung vereint Wohnkomfort, großzügigen Raum und einen sonnigen Garten – eine perfekte Kombination für anspruchsvolle Eigennutzer oder als wertbeständige Kapitalanlage

Kaufpreis Wohnung: 830.000 € + Kaufpreis Stellplatz: 15.000 € = Gesamtpreis 845.000 €

Ausstattung


    • Hochwertiger Parkettboden in den Wohnräumen
    • Einbauküche im Kaufpreis enthalten
    • Gäste-WC im Erdgeschoss
    • Zwei Schlafzimmer und Badezimmer im Obergeschoss
    • Großer Hobbyraum im Untergeschoss (ca. 29 m²)
    • Duplex-Stellplatz (zzgl. 15.000 €)

    Das abgebildete Mobiliar gehört zur Ausstattung und ist im Kaufpreis enthalten. Eine Inventarliste steht beim Kauf zur Verfügung. Einige Deko-Artikel stammen aus unserer Einrichtungsabteilung und sind nicht im Kaufpreis enthalten, können jedoch auf Wunsch gerne erworben werden.

    Lage


    Die Wohnung befindet sich im beliebten Stadtteil Waldperlach, einem ruhigen und doch hervorragend angebundenen Wohnviertel im Südosten der Stadt. Durch die dichte Bebauung mit Ein- und Mehrfamilienhäusern, viel Grün und gepflegten Gehwegen bietet die Umgebung eine sehr angenehme Wohnqualität.

    In fußläufiger Nähe gibt es alle Einrichtungen des täglichen Bedarfs: Supermärkte, Cafés und Restaurants sind schnell erreichbar, genauso wie Ärzte, Schulen und Kindergärten. Die Nachbarschaft ist familienfreundlich.

    Die Anbindung an den Öffentlichen Nahverkehr ist gut: Buslinien sind in der Umgebung vorhanden, mit kurzem Weg zur nächsten Haltestelle. Damit ist auch die Erreichbarkeit der Stadtmitte unkompliziert. Für Pendler ist zudem die Nähe zu größeren Verkehrsadern oder Autobahnen von Vorteil.

    Rundum bietet diese Lage eine hohe Lebensqualität: ruhig, grün und gleichzeitig alles Wesentliche in Reichweite — ideal sowohl für Familien als auch für Berufspendler.

    Energieangaben


    Energieeffizienz-Klasse:
    C
    Energieverbrauchs-Kennwert:
    80 kWh/(m²*a)
    Wesentliche Energieträger:
    Erdgas leicht
    Energieausweis-Typ:
    Verbrauchsausweis
    Baujahr:
    1998

    Ermitteln Sie Ihren persönlichen Zinssatz


    Sonstiges


    Die Wohnung ist frei und steht dem Käufer sofort zur Verfügung. Sie ist bestens geeignet als Kapitalanlage oder auch zur Eigennutzung.

    Als führende Agentur für möblierte Vermietung auf Zeit steht Mr. Lodge den neuen Eigentümern oder Kapitalanlegern mit Beratung, Vermietung und Dienstleistungen rund um die Immobilie, gerne zur Verfügung.

    Mr. Lodge bietet diese Wohnung im Allein-Auftrag an.

    Bitte beachten Sie, dass das digitale Exposé eine erste Übersicht bieten soll und dass alle Angaben auf Auskünften des Eigentümers bzw. Auftraggebers beruhen und wir hierfür keine Haftung übernehmen.

    Exposé anfordern


    Mr. Lodge GmbH verarbeitet die von Ihnen zur Verfügung gestellten personenbezogenen Daten gemäß der Mr. Lodge-Datenschutzerklärung.

    Cookie Hinweis
    Diese Webseite verwendet Cookies, um Inhalte zu personalisieren, Werbungen anzupassen und zu messen und eine sichere Erfahrung zu bieten. Indem Sie die Schaltfläche "Alles zulassen und fortsetzen" betätigen, stimmen Sie zu, dass Daten über Cookies gesammelt werden.
    Bitte aktivieren Sie Cookies in ihren Browsereinstellungen!