Leider nicht mehr verfügbar

Idyllische Doppelhaushälfte mit weitläufigem Grundstück

Walchstadter Höhe
82057 Icking
ID 14465
€ 3.400,-
inkl.: Nebenkosten, Wasser, Internet, Carport;
zzgl.: Strom, Heiz- und Warmwasserkosten

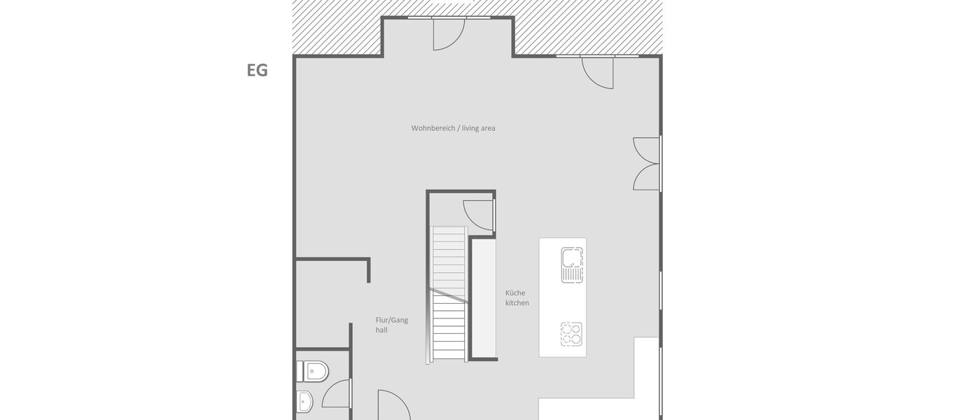
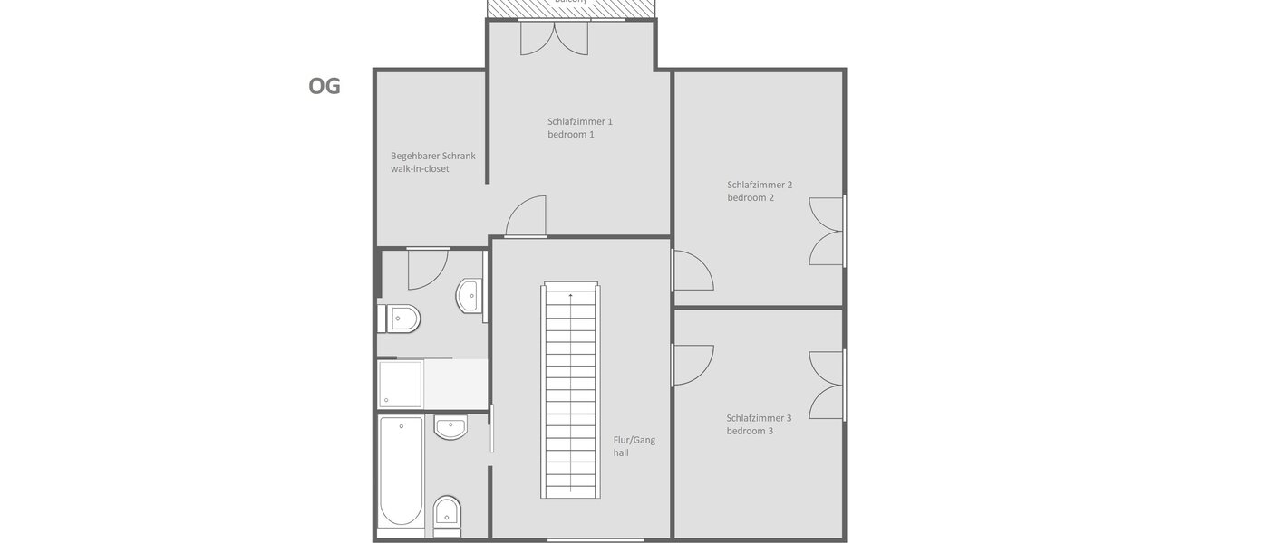
5 Zimmer
ca. 186 m²
ca. 1200 m²
Verfügbar ab
01.03.2026 bis 31.08.2026
Mindestmietzeit
6 Monate
Personenanzahl
geeignet für 6 Personen
Servicegebühr
Keine
Einschränkungen
nur an Nichtraucher, Haustiere auf Anfrage

Bitte beachten Sie: dieses 5-Zimmer Haus steht nur maximal bis zum 31.August 2026 zur Verfügung (Stand 12.August 2025)

Ausstattung

Internet
Fernseher
Staubsauger
Waschmaschine
Wäschetrockner
Spülmaschine
Handtücher
Bettwäsche
Föhn
Bügeleisen
Keller
Garage
Aufzug
Balkon
Terrasse

Informationen

Baujahr
2017
Zimmer
Wohn- / Esszimmer mit Sitz- und Essgruppe
1. Schlafzimmer mit Doppelbett 180 x 200 cm
2. Schlafzimmer mit französischem Bett 140 x 200 cm
3. Schlafzimmer mit Einzelbett 100 x 200 cm
Begehbarer Schrank
Hobbyraum
Bad mit Dusche
Bad mit Badewanne
Gäste WC
Fußbodenbeläge
Parkettboden, Fliesenboden
Möblierung
neuwertig, teils Antiquitäten, gemischt, schön und hell eingerichtet, gehoben
Küche
zum Wohnbereich halb offene Einbauküche, mit Fenster, Kühl-/ Gefrierkombination, Spülmaschine, Induktionskochfeld, Cerankochfeld, elektrischer Backofen, Dunstabzug, Dampfbackofen, Backofen mit integrierter Mikrowelle, Kaffeevollautomat, komplett mit Geschirr und Küchenutensilien
Ausstattungsdetails
Hauswirtschaftsraum mit Waschmaschine
Zwei Smart-TVs (Internetfähig)
inkl. Bettwäsche, Handtücher und Föhn
inkl. Bügelbrett, Bügeleisen und Staubsauger
Kaminofen
Internet
WLAN
Internet Flatrate (mit bis zu 1.000 Mbit/s)
Kosten in der Miete enthalten
Specials
Balkon
Terrasse
Blick in den Garten
Großer Garten
Keller
Parken
Carport mit 2 Stellplätzen
Kosten in der Miete enthalten
Info zum Mietpreis
Inkl.: Nebenkosten, Wasserkostenvorauszahlung in Höhe von 0,- € /Monat, Internet, Carport
Zzgl.: Strom, Heiz- und Warmwasserkosten
Kaution
zwei Monatsmieten
Rundfunkbeitrag
Rundfunkbeitrag für die öffentlich-rechtlichen Rundfunkanstalten. Der monatliche Rundfunkbeitrag ist vom Mieter direkt an ARD ZDF Deutschlandradio, Beitragsservice zu bezahlen und beträgt derzeit 18,36 €/Monat - nicht in der Miete enthalten, soweit nicht anders ausgewiesen: weitere Informationen
Energieausweis
Baujahr laut Energieausweis: 2017
Energieausweistyp: Bedarfsausweis
Wesentliche Energieträger: Holzpellets
Energieeffizienzklasse: B
Endenergiebedarf: 58,00 kWh/(m²*a)
Giulia Fabiani

Giulia Fabiani

Consultant | Vermietung

Noch nicht die richtige Wohnung dabei gewesen?

Unser Vermietungsteam freut sich Ihnen bei der Suche zu helfen. Füllen Sie dazu einfach nur unsere Suchanfrage aus und wir melden uns schnellstmöglich bei Ihnen.

Suchanfrage stellen

Lage des Objekts

Walchstadter Höhe

Icking

  • gute Wohnlage
  • sehr ruhig
  • ca. 24,5 km südwestlich von München-Zentrum
Mehr zur Umgebung
S-Bahn
Linie S7, Haltestelle Icking (25 Minuten zu Fuß)

Ähnliche Wohnungen

Reiheneckhaus mit 5 Zimmern | München-Untermenzing | 14723
Video
01.03.2026 für 6-36 Monate
5 Zimmer
140 m²
München-Untermenzing
3.200
€/Monat
Wohnung mit 5 Zimmern | München-Harlaching | 14713
Video
ab sofort für 3 Monate
5 Zimmer
175 m²
München-Harlaching
3.900
€/Monat
Reiheneckhaus mit 5 Zimmern | Eichenau | 13696
Video
01.04.2026 für 6-48 Monate
5 Zimmer
190 m²
Eichenau
3.550
€/Monat
Doppelhaushälfte mit 5 Zimmern | München-Lochhausen | 14662
Video
ab sofort für 6-36 Monate
5 Zimmer
150 m²
München-Lochhausen
3.150
€/Monat
Wohnung mit 2 Zimmern | München-Milbertshofen | 10421
Video
01.04.2026 für 6-36 Monate
2 Zimmer
51 m²
München-Milbertshofen
1.950
€/Monat

Häufige Fragen

Für Sie als Mieter:in ist unser Service kostenlos. An den Vermietenden zahlen Sie nach Vertragsunterzeichnung die monatliche Miete sowie einmalig eine Kaution (i.d.R. zwei Monatsmieten).

Wenn Sie auf unserer Webseite ein passendes Angebot gefunden haben oder passende Angebote von uns zugeschickt bekommen möchten, füllen Sie bitte zuerst unser Anmeldeformular vollständig aus. Unsere Consultants werden sich dann schnellstmöglich mit Ihnen in Verbindung setzen, um die weiteren Schritte zu besprechen. Gerne organisieren wir einen Besichtigungstermin vor Ort. Haben Sie sich für eine Wohnung entschieden, dann besprechen wir dies mit dem Vermieter und setzen nach Zusage den Mietvertrag auf.

Der angegebene Mietzeitraum ist verbindlich. Wenn eine Wohnung zum Beispiel zum 01. Juni angeboten wird, kann sie nicht früher angemietet werden in der Regel auch nicht deutlich später. Sollte der von Ihnen gewünschte Mietzeitraum vom Angebot abweichen, teilen Sie dies ihrem Consultant dennoch gerne mit. Ist ein festes Enddatum angegeben, kann die Wohnung nicht verlängert werden. Bei einem variabel angegebenen Mietzeitraum kann mit dem Vermietenden ggf. über leichte Abweichungen verhandelt werden.

Private Anbieter von Wohnungen und Häusern in München unterliegen einer Mindestmietzeit von sechs Monaten. Die Stadt München betrachtet Anmietzeiträume von unter sechs Monaten als Wohnraumzweckentfremdung, daher werden über uns Wohnungen und Häuser nur für mindestens ein halbes Jahr oder länger vermittelt.<br />Gewerbliche Anbieter wie Serviced Apartments dürfen wiederum an vielen Standorten nicht länger als 6 Monate vermieten. Somit unterscheiden wir zwischen Short-Stay und Long-Term Angeboten.<br />In der Region Tegernsee dürfen auch private Anbieter für kürzere Mietzeiträume vermieten und somit können wir hier eine möblierte Vermietung bereits ab einem Monat anbieten.

Wünschen Sie eine persönliche Besichtigung vor Ort, teilen Sie dies uns mit. Sollte die Wohnung noch vermietet sein, werden unsere Consultants den Termin mit dem aktuellen Mieter absprechen. Ist die Wohnung bereits frei, sind in der Regel kurzfristige Termine möglich. Bitte beachten Sie, dass die Wohnung meist an die Person vermietet wird, die zuerst eine verbindliche Zusage macht. Planen Sie daher die Termine nicht zu spät, da sonst die gewünschten Objekte in der Zwischenzeit vermietet sein könnten.

Auf Anfrage können Sie unsere Angebote virtuell per Videoanruf besichtigen. Auf unserer Webseite finden Sie hochwertige Foto- und Videoaufnahmen der Immobilie, der Umgebung sowie zusätzliche Detailinformationen zu jedem Objekt.

Der Mietvertrag wird zwischen dem Mieter und dem Vermieter abgeschlossen. In den meisten Fällen wird der Mietvertrag von Mr. Lodge ausgefertigt - in Absprache mit Mieter und Vermieter - von Mr. Lodge ausgefertigt und an beide Parteien zur Unterschrift weitergeleitet.

Wie im Mietvertrag vereinbart, muss die Wohnung professionell endgereinigt zurückgegeben werden. Bei Auszug findet eine gewerbliche Endreinigung statt, die durch den Vermieter an eine Fachfirma in Auftrag gegeben wird. Die Kosten ergeben sich nach Aufwand und werden in der Regel vom Mieter getragen. Der Vermieter erhält die Rechnung der Reinigungsfirma und verrechnet die Kosten mit der Kaution. Durch eine gründliche Vorreinigung können die Kosten der gewerblichen Reinigung reduziert werden. Was alles zu einer Endreinigung gehört, entnehmen Sie bitte unserer Checkliste.

Cookie Hinweis
Diese Webseite verwendet Cookies, um Inhalte zu personalisieren, Werbungen anzupassen und zu messen und eine sichere Erfahrung zu bieten. Indem Sie die Schaltfläche "Alles zulassen und fortsetzen" betätigen, stimmen Sie zu, dass Daten über Cookies gesammelt werden.
Bitte aktivieren Sie Cookies in ihren Browsereinstellungen!