leider nicht mehr verfügbar
Weitersuchen?
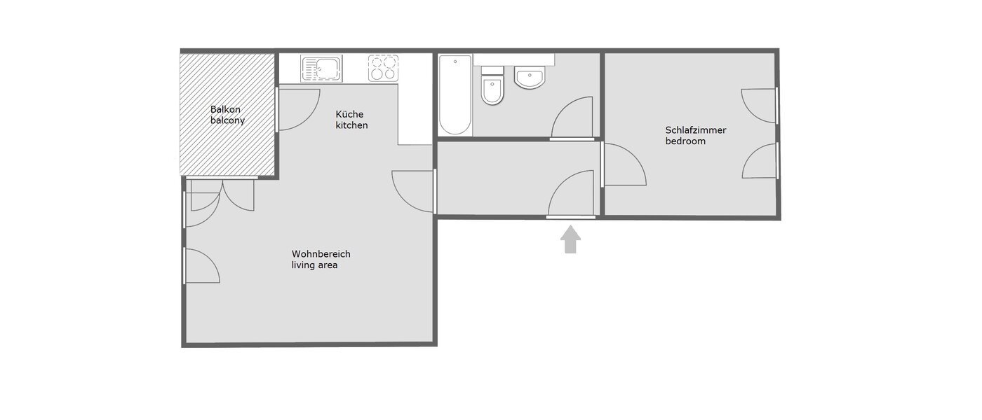
Schöne 2-Zimmer Wohnung nähe Olympiapark
Umgebung
Wohnen in München Moosach
Einkaufsmöglichkeiten:
alle Geschäfte des täglichen Bedarfs, Supermärkte, Blumengeschäft, Bäcker, Metzger, Olympia Einkaufs Zentrum
Essen und Trinken:
Restaurants, Cafés, Bar, Biergarten
Sportmöglichkeiten:
Eissporthalle, Fitnesscenter, Schwimmbad, Squashcenter
