Leider nicht mehr verfügbar
Sehr gut möbliertes Apartment, Nähe S2 Denning
Schnorr-Von-Carolsfeld-Straße
81927 München
81927 München
ID 10800
€ 1.450,-
inkl.: Nebenkosten, Strom, Heiz- und Warmwasserkosten, Internet
1 Zimmer
ca. 36 m²
Stockwerk 1
ID 10800
Suchprofil hinterlegen
Verfügbar ab
16.07.2026 für 6-24 Monate
Mindestmietzeit
6 Monate
Personenanzahl
geeignet für 1 Person
Servicegebühr
Keine
Einschränkungen
nur an Nichtraucher, keine Haustiere
Videorundgang
Besichtigen Sie von überall einfach
und bequem Ihr neues Zuhause.
Verifiziert: Diese Wohnung wurde von Mr. Lodge persönlich besichtigt und fotografiert.
Ausstattung
Internet
Fernseher
Staubsauger
Waschmaschine
Wäschetrockner
Spülmaschine
Handtücher
Bettwäsche
Föhn
Bügeleisen
Keller
Garage
Aufzug
Balkon
Terrasse
Informationen
Stockwerk
1. - ohne Aufzug
Baujahr
1991
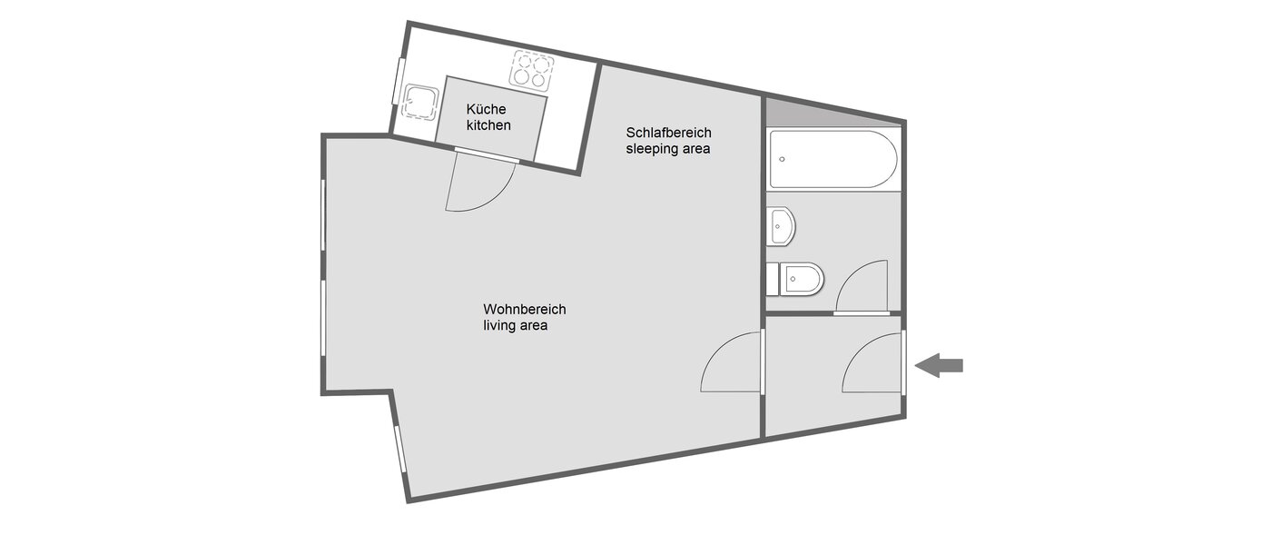
Zimmer
Kombiniertes Wohn-/Schlafzimmer:
Doppelbett, Esstisch mit 2 Stühlen, Regal, Sofa, Kleiderschrank, Sideboard, Schreibtisch
Bad mit Badewanne
Doppelbett, Esstisch mit 2 Stühlen, Regal, Sofa, Kleiderschrank, Sideboard, Schreibtisch
Bad mit Badewanne
Möblierung
1-3 Jahre, schön und hell eingerichtet, sehr gut, gehoben
Küche
kleine Einbauküche, mit Fenster, Cerankochfeld, Dunstabzug, elektrischer Backofen, Kühlschrank mit Gefrierfach, Mikrowelle, Wasserkocher, Kaffeemaschine, komplett mit Geschirr und Küchenutensilien
Ausstattungsdetails
Münzwaschmaschine in der Wohnanlage
Münztrockner im Haus
Flachbildfernseher
DVD-Player
Stereoanlage, mit Anschluss für MP3-Player, mit Bluetooth
inkl. Bettwäsche, Handtücher und Föhn
inkl. Bügelbrett, Bügeleisen und Staubsauger
Münztrockner im Haus
Flachbildfernseher
DVD-Player
Stereoanlage, mit Anschluss für MP3-Player, mit Bluetooth
inkl. Bettwäsche, Handtücher und Föhn
inkl. Bügelbrett, Bügeleisen und Staubsauger
Internet
WLAN
Internet Flatrate (mit bis zu 50 Mbit/s)
Kosten in der Miete enthalten
Internet Flatrate (mit bis zu 50 Mbit/s)
Kosten in der Miete enthalten
Specials
Keller
Parken
Parkmöglichkeiten entlang der Straße
Wohnungsgeberbestätigung (WGB) wird ausgestellt
Wer neu in München ist, muss sich innerhalb von 2 Wochen nach Einzug bei der Meldebehörde anmelden. Hierfür wird die Wohnungsgeberbestätigung benötigt.
Info zum Mietpreis
Inkl.: Nebenkosten, Strom, Heiz- und Warmwasserkosten, Internet
Kaution
zwei Monatsmieten
Rundfunkbeitrag
Rundfunkbeitrag für die öffentlich-rechtlichen Rundfunkanstalten. Der monatliche Rundfunkbeitrag ist vom Mieter direkt an ARD ZDF Deutschlandradio, Beitragsservice zu bezahlen und beträgt derzeit 18,36 €/Monat - nicht in der Miete enthalten, soweit nicht anders ausgewiesen: weitere Informationen
Energieausweis
Baujahr laut Energieausweis: 1991
Energieausweistyp: Verbrauchsausweis
Wesentliche Energieträger: Fernwärme
Energieeffizienzklasse: C
Energieverbrauchskennwert: 88,70 kWh/(m²*a)
Energieausweistyp: Verbrauchsausweis
Wesentliche Energieträger: Fernwärme
Energieeffizienzklasse: C
Energieverbrauchskennwert: 88,70 kWh/(m²*a)
Gavin Carey
Head of International Affairs
Noch nicht die richtige Wohnung dabei gewesen?
Unser Vermietungsteam freut sich Ihnen bei der Suche zu helfen. Rufen Sie uns einfach an unter +49 89 3408 230 oder füllen Sie unsere Suchanfrage aus. Wir melden uns schnellstmöglich bei Ihnen. Übrigens bei uns sind auch Termine am Samstag möglich.
Suchanfrage stellenLage des Objekts
Schnorr-Von-Carolsfeld-Straße
München Denning
- gute Wohnlage
- sehr ruhig
- ca. 5,3 km östlich von München-Zentrum
U-Bahn
Linie U4, Haltestelle Arabellapark (+5 Bushaltestellen)
S-Bahn
Linie S8, Haltestelle Englschalking (2 Minuten zu Fuß)
Bus
Linien 154, 184 und N72, Haltestelle Freischützstraße (5 Minuten zu Fuß)
Linien 154, 183, 184 und N72, Haltestelle Englschalkinger Straße (6 Minuten zu Fuß)
Linien 154, 183, 184 und N72, Haltestelle Englschalkinger Straße (6 Minuten zu Fuß)
Ähnliche Wohnungen
Video
ab sofort für 6-36 Monate
1 Zimmer
38 m²
München-Bogenhausen
1.750
€/Monat
Video
ab sofort für 6-36 Monate
1 Zimmer
26 m²
München-Arabellapark
1.550
€/Monat
Video
01.06.2026 für 6-24 Monate
1 Zimmer
40 m²
München-Schwabing
1.720
€/Monat
Video
16.07.2026 für 6-36 Monate
1 Zimmer
26 m²
München-Oberföhring
1.250
€/Monat
Video
ab sofort für 6-24 Monate
1.5 Zimmer
70 m²
München-Herzogpark
3.500
€/Monat
