Ihre Kontaktperson
Dr. Cornelia Koronakis
Dr. Cornelia Koronakis
Immobilienberaterin | Verkauf
089 - 340 823-546
Zimmer
1,5
Wohnfläche ca.
57 m²
Kaufpreis
€ 699.000,-
Provision
2,975% inkl. 19% MwSt.
Lage
80639 München

FRIENDS TOWER - Wohnen mit Lifestyle - befristet vermietet


Kennung:
70313
Objektart:
Apartment
Wohnfläche ca.:
57 m²
Baujahr:
2016
Wohngeld:
489 €
Zustand:
Gepflegt
Aufzug:
Ja
Badezimmer:
1
Gäste-WC:
Ja
Keller:
Ja
Einbauküche:
Ja
Etage:
5
Bodenbelag:
Parkett, Fliesen

Provision

Käuferprovision: 2,975% inkl. 19% MwSt.

Top-Highlights


  • Helles Apartment in Südausrichtung
  • Deckenhöhe ca. 2,80m
  • Einzigartiges Wohnkonzept

Beschreibung


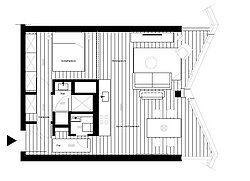
Das stilvolle, nach Süden ausgerichtete 1,5-Zimmer-Apartment im 5. Obergeschoss des FRIENDS TOWERS bietet auf ca. 57 m² ein modernes, lichtdurchflutetes Raumkonzept.

Die hochwertige Schreiner-Küche ist nahtlos in den Wohn- und Essbereich integriert, während eine durch Gardinen abgetrennte Schlafnische Privatsphäre bietet. Große Panoramafenster mit 3-facher Isolierverglasung und eine elektrische Beschattungsanlage sorgen für viel Tageslicht und ein angenehmes Raumklima. Elegante Details wie Parkettboden, Fußbodenheizung und ein stilvolles Bad ergänzen das Interieur. Hohe Decken von ca. 2,80 Metern betonen das luftige Raumgefühl. Zusätzlich gibt es im Untergeschoss eine praktische Storage-Fläche.

Der FRIENDS TOWER bietet exklusive Gemeinschaftseinrichtungen wie eine Dachterrasse mit Alpenblick, einen Fitnessbereich und eine Kitchen-Lounge für private Veranstaltungen. Ein Concierge-Service sorgt für zusätzlichen Komfort.

Dieses Apartment ist ideal für alle, die ein außergewöhnliches Wohnerlebnis in München suchen.

Das monatliche Hausgeld für den Stellplatz beträgt derzeit 59,00 €.

KP Wohnung 699.000 € + KP Einzelstellplatz 40.000 € = Gesamt 739.000 €

Ausstattung



    Küche:
    • Integrierte, hochwertig ausgestattete Küche - Schreinerarbeit der Firma Holzrausch
    • Dunstabzug, elektrischer Backofen, Induktionskochfeld, Kühlschrank, Spülmaschine

    Wohn-/Essbereich:
    • Flatscreen -TV
    • Separater Schlafbereich für einen ruhigen Rückzugsort
    • Panoramafenster mit 3-facher Isolier- und Schallschutzverglasung und elektrischer Beschattungsanlage
    • Parkett und Fußbodenheizung für ein angenehmes Wohnklima
    • Waschtrockner

    Badezimmer:
  • Exklusives Baddesign mit Walk-in Regendusche und separatem Gäste-WC


  • Komfort & Lifestyle im FRIENDS TOWER:
    • Dachterrasse im 15. OG mit atemberaubendem 360°-Blick über München bis zu den Alpen
    • Fitnessbereich
    • Buchbare Kitchen-Lounge für gesellige Abende mit Freunden
    • Große, abgeschlossene Fahrradräume
    • Storage-Fläche im Untergeschoss
    • Concierge-Service im Foyer mit Paketannahme, Hemdenservice und andere Dienstleistungen
    • Fast Internet mit 1000 MBit möglich

    Die gesamte Möblierung mit Einbauküche und Ausstattung wie Sofa, TV, Besteck, u.v.m. sind im Kaufpreis enthalten. Eine detaillierte Inventarliste wird beim Kauf bereitgestellt.

    Lage


    Neuhausen-Nymphenburg gehört zu den begehrtesten Wohnlagen Münchens und vereint zentrale Lage mit viel Grün. Das Viertel beeindruckt durch das prachtvolle Nymphenburger Schloss und seine Parkanlagen sowie das lebhafte Treiben rund um den Rotkreuzplatz. Die angebotene Immobilie liegt direkt am Hirschgarten, einem beliebten Erholungsgebiet.

    Die Infrastruktur ist hervorragend: Im nahegelegenen Hirschgarten Forum finden sich Supermärkte, ein Biomarkt, eine Drogerie, eine Reinigung, eine Postfiliale und Restaurants. Ein Ärztehaus sorgt für optimale medizinische Versorgung. Die Nymphenburger Straße bietet zahlreiche Einkaufsmöglichkeiten wie Feinkost Käfer, Boutiquen, Cafés und hochwertige Restaurants.

    Das FRIENDS Tower ist bestens an den öffentlichen Nahverkehr angebunden: Die S-Bahn-Station "Hirschgarten" (Stammstrecke) bietet eine direkte Verbindung zum Flughafen, und die Tramlinien 16 und 17 sorgen für zusätzlichen Komfort. Der Hauptbahnhof ist in 5 Minuten, der Marienplatz in 8 Minuten erreichbar. Der Mittlere Ring bietet schnellen Zugang zu den Autobahnen.

    In der Umgebung gibt es zahlreiche Freizeitmöglichkeiten: Der ESV bietet ein breites Sportprogramm, und das Body & Soul Center lädt mit einer Kletterwand, einem 25-Meter-Sportbecken und Wellnessbereich zum Entspannen ein. Grüne Oasen wie der Englische Garten, der Schlosspark Nymphenburg, der Hirschgarten und der Olympiapark bieten Erholung und viele Freizeitangebote.

    Energieangaben


    Heizungsart:
    Fußbodenheizung
    Energieeffizienz-Klasse:
    B
    Energieverbrauchs-Kennwert:
    60 kWh/(m²*a)
    Wesentliche Energieträger:
    Fernwärme
    Energieausweis-Typ:
    Verbrauchsausweis
    Baujahr:
    2016

    Ermitteln Sie Ihren persönlichen Zinssatz


    Sonstiges


    Das Apartment ist derzeit befristet für 2.390,-€/Monat Warmmiete (inkl. Nebenkosten, Strom und Internetflat) bis einschließlich 28.02.2026 vermietet. Sie ist bestens geeignet als Kapitalanlage oder auch zur Eigennutzung. Gerne beantworten wir Ihre Fragen in einem persönlichen Gespräch.

    Als führende Agentur für Wohnen auf Zeit steht Mr. Lodge auch den neuen Eigentümern oder Kapitalanlegern mit Beratung, Vermietung und Dienstleistungen rund um die Immobilie gerne zur Verfügung.

    Mr. Lodge bietet diese Immobilie im Allein-Auftrag an.

    Bitte beachten Sie, dass das digitale Exposé eine erste Übersicht bieten soll und dass alle Angaben auf Auskünften des Eigentümers bzw. Auftraggebers beruhen und wir hierfür keine Haftung übernehmen.

    Exposé anfordern


    Mr. Lodge GmbH verarbeitet die von Ihnen zur Verfügung gestellten personenbezogenen Daten gemäß der Mr. Lodge-Datenschutzerklärung.

    Cookie Hinweis
    Diese Webseite verwendet Cookies, um Inhalte zu personalisieren, Werbungen anzupassen und zu messen und eine sichere Erfahrung zu bieten. Indem Sie die Schaltfläche "Alles zulassen und fortsetzen" betätigen, stimmen Sie zu, dass Daten über Cookies gesammelt werden.
    Bitte aktivieren Sie Cookies in ihren Browsereinstellungen!