Zur Miete: Hochwertige 4-Zimmer Wohnung
- Stylisch, hochwertig & modern eingerichtet und ausgestattet: harmonisches Gesamtkonzept mit trendigen Akzenten - so wohnt man gerne!
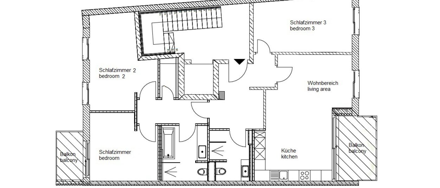
- Sonnige Wohnküche mit großem Esstisch und Wohnbereich sowie mit großem Südbalkon
- Drei komfortable Schlafzimmer, davon zwei Schlafzimmer mit trendigem Arbeitsbereich mit Schreibtisch
- Zwei große Bäder
- Zwei große Balkone
- Optimaler Grundriss: Wohn- und Gästebereich im vorderen Teil, zwei weitere Schlafzimmer im rückwärtigen Bereich
- Fußbodenbeläge: moderner Vinylboden in Holzoptik im Wohn- und Schlafbereich
- Großer und heller Hauswirtschaftsraum im Erdgeschoss des Hauses mit eigener Waschmaschine & Trockner
- Innenhofterrasse mit Fahrradabstellplatz
- Gemeinschaftsgarten im Innenhof
- Sehr praktisch: die gesamte Wohnung wurde im Jahr 2024 frisch gestrichen
Hochwertige Schallschutzfenster: bei geschlossenen Fenstern ist der Zugverkehr auf den südlich an die Hildachstraße angrenzenden Gleisanlagen kaum zu bemerken.
Sehr gute Einkaufsmöglichkeiten: zu den modernen und trendigen Pasing Arcaden nur ca. 800 m oder 10 Min. Fußweg.
Sehr gute Anbindung an die S-Bahn und überregionalen Zugverkehr: S3 - S8 und DB direkt am Pasinger Bahnhof: nur ca. 12 Min. oder 1000 m Fußweg zum Pasinger Bahnhof Zugang Nordseite.
Ausstattung:
Ausrichtung:
Zwei Schlafzimmer liegen zum ruhigen Innenhof, ein Schlafzimmer liegt zur Straße
Stockwerk:
3. - mit Aufzug
Baujahr:
2017
Zimmer:
Wohn- / Esszimmer mit Sitz- und Essgruppe
1. Schlafzimmer mit Boxspringbett 180 x 200 cm
2. Schlafzimmer mit Boxspringbett 160 x 200 cm
3. Schlafzimmer mit Doppelbett 160 x 200 cm
Zwei Bäder
Bad mit Dusche und Wanne
Bad mit Dusche
1. Schlafzimmer mit Boxspringbett 180 x 200 cm
2. Schlafzimmer mit Boxspringbett 160 x 200 cm
3. Schlafzimmer mit Doppelbett 160 x 200 cm
Zwei Bäder
Bad mit Dusche und Wanne
Bad mit Dusche
Fußbodenbeläge:
Vinylboden, Fliesenboden
Möblierung:
3-5 Jahre, schön und hell eingerichtet, gehoben, Designer Stil, moderne Linie, eleganter Stil
Küche:
Moderne zum Wohnbereich offene Küche, mit Fenster, Dunstabzug, elektrischer Backofen, Induktionskochfeld, Kühl-/ Gefrierkombination, Mikrowelle, Spülmaschine, Kapsel-Kaffeemaschine, Wasserkocher, Toaster, komplett mit Geschirr und Küchenutensilien
Ausstattungsdetails:
Eigene Waschmaschine im Keller
Eigener Trockner im Keller
Flachbildfernseher
Stereoanlage
inkl. Bettwäsche und Handtücher
inkl. Bügelbrett, Bügeleisen und Staubsauger
Eigener Trockner im Keller
Flachbildfernseher
Stereoanlage
inkl. Bettwäsche und Handtücher
inkl. Bügelbrett, Bügeleisen und Staubsauger
Internet:
WLAN
Internet Flatrate (mit bis zu 100 Mbit/s)
Kosten in der Miete enthalten
Internet Flatrate (mit bis zu 100 Mbit/s)
Kosten in der Miete enthalten
Specials:
Lichtdurchflutete Wohnung
Zwei grosse Balkone, Südbalkon, Nordbalkon
Freier Blick, Blick in den begrünten Innenhof
Gemeinschaftsgarten
Abstellraum
Zwei grosse Balkone, Südbalkon, Nordbalkon
Freier Blick, Blick in den begrünten Innenhof
Gemeinschaftsgarten
Abstellraum
Parken:
Duplexstellplatz (Tiefgarage) - weitere Infos: Parken in München
monatliche Kosten 100,- €
Kosten nicht in der Miete enthalten
monatliche Kosten 100,- €
Kosten nicht in der Miete enthalten
Info zum Mietpreis:
Inkl.: Nebenkosten, Heizkosten, Wasser, Internet
Zzgl.: Strom
Optional: Duplexstellplatz (Tiefgarage) 100,- € /Monat
Zzgl.: Strom
Optional: Duplexstellplatz (Tiefgarage) 100,- € /Monat
Kaution:
Zwei Monatsmieten
Rundfunkbeitrag:
Inkl. Rundfunkbeitrag - Rundfunkgebühren für die öffentlich-rechtlichen Rundfunkanstalten.
Wohnungsgeberbestätigung (WGB) wird ausgestellt
Wer neu in München ist, muss sich innerhalb von 2 Wochen nach Einzug bei der Meldebehörde anmelden. Hierfür wird die Wohnungsgeberbestätigung benötigt.
Öffentliche Verkehrsmittel
Umgebung
Wohnen in München Pasing
Einkaufsmöglichkeiten:
Pasing Arcaden (Einkaufszentrum), Metzger
Essen und Trinken:
Restaurants
Energieausweis:
Baujahr laut Energieausweis: 2017
Energieausweistyp: Verbrauchsausweis
Wesentliche Energieträger: Gas
Energieeffizienzklasse: B
Energieverbrauchskennwert: 66,80 kWh/(m²*a)
Energieausweistyp: Verbrauchsausweis
Wesentliche Energieträger: Gas
Energieeffizienzklasse: B
Energieverbrauchskennwert: 66,80 kWh/(m²*a)
