leider nicht mehr verfügbar
Weitersuchen?
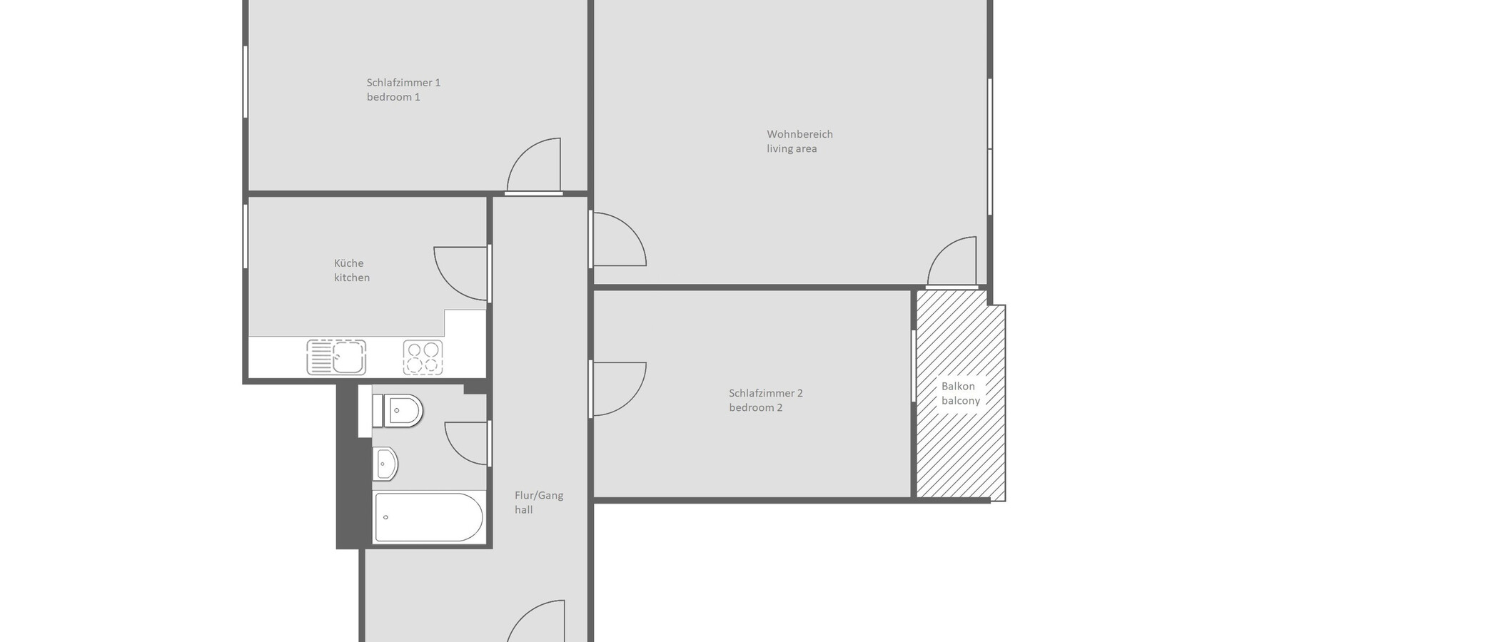
Wohnen in Toplage, hell und freundlich möbliert
Umgebung
Wohnen in München Lehel
Einkaufsmöglichkeiten:
Apotheke, Bäcker, Bioladen, Boutiquen, Drogerie, Getränkehändler, Kaufhaus, Metzger, Obst- und Gemüsehändler, Reinigung, Supermarkt, Waschsalon, Wochenmarkt
Essen und Trinken:
Bars, Biergärten, Cafés, Kino, Kneipen, Pizzerien, Restaurants, Stehcafes
