leider nicht mehr verfügbar
Weitersuchen?
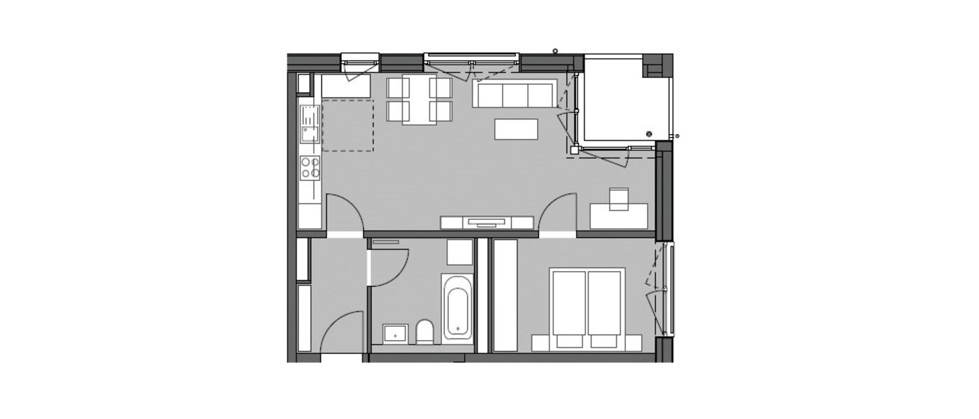
Sehr schöne 2-Zimmer Wohnung mit Einzelstellplatz
Umgebung
Wohnen in München Am Hart
Einkaufsmöglichkeiten:
alle Geschäfte des täglichen Bedarfs, Apotheke, Metzger, Blumengeschäft, Getränkehändler
Essen und Trinken:
Restaurants, Café
