Herzogparksuiten | Junior-Suite mit Galerie und Garten
Der Herzogpark in München-Bogenhausen: Herrschaftliche Architektur, vornehme Geschichte.
Umgeben von alten Bäumen, eingebettet zwischen Isar, Montgelas- und Oberföhringer Straße. In dieser Kulisse bieten wir mit den Herzogparksuiten einen außergewöhnlichen Wohngenuss. Angeboten werden durchdachte, einzigartige 1- und 2-Zimmer-Suiten mit Wohnflächen von rund 26 bis 90 m², entworfen vom renommierten Münchner Büro steidle architekten. Entstanden im ehemaligen Park des französischen Generalkonsulats.
Repäsentativer und großzüger Eingangsbereich mit edlen Holztüren, Wandgestaltung in Stucco-Technik, feinem Terrazzo, sowie eleganter Beleuchtung. Zeitgemäßes und elegantes Design. Eichenholzparkett geölt, im Fischgrat verlegt. Fußbodenheizung in allen Räumen. Hoher Schallschutz und kontrollierte Wohnraumbelüftung. In sämtlichen Suiten sorgen bodentiefe Fenster für ein ganz besonders lichtes und freies Wohngefühl. Elegante Bäder mit stilvollen Wand- und Bodenfliesen, hochwertige, moderne Armaturen, elegante Einbaumöbel und viele weitere, exquisite Ausstattungskomponenten.
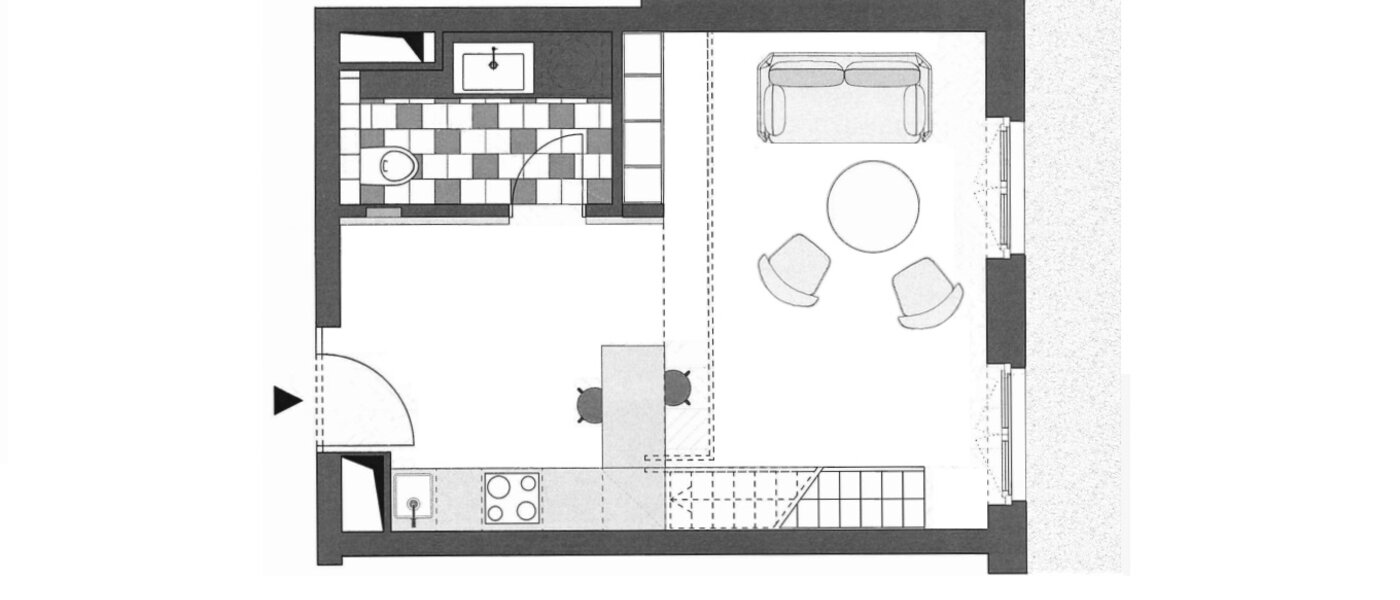
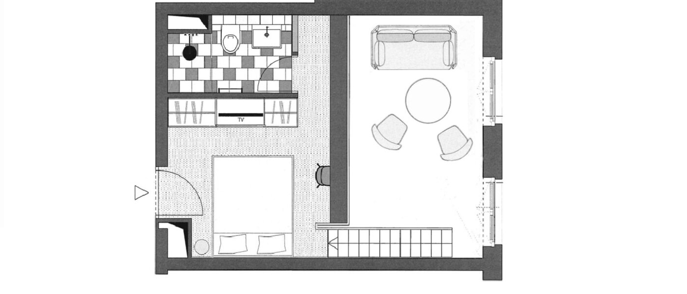
In den Herzogparksuiten sind die 2-Zimmer Galeriewohnungen mit ihrem offenen Wohnkonzept der Schatz an sich. Über zwei Etagen hinweg erstrecken sich nicht nur die Räume, sondern auch die Fensterbereiche. Der Wohnraum wächst mit partiellen Raumhöhen von über 5 Metern sogar über sich selbst hinaus.
Sehr praktisch: Es kann eine wöchtentliche Reinigung und ein 14-tägiger Wäschewechsel hinzugebucht werden!
Ausstattung:
Schlafbereich auf der Galerie mit Doppelbett 160 x 200 cm
Bad mit bodengleicher Dusche
Gäste WC
Zwei Flachbild-Fernseher, Kabel-TV, Kosten in der Miete enthalten
inkl. Bettwäsche, Handtücher und Föhn
inkl. Bügelbrett, Bügeleisen und Staubsauger
Internet Flatrate (mit bis zu 200 Mbit/s)
Kosten in der Miete enthalten
Die Wohnung ist auf zwei Ebenen aufgeteilt, Keller
monatliche Kosten 160,- €
Kosten nicht in der Miete enthalten
Optional: Tiefgarage (Einzelstellplatz) 160,- € /Monat; wöchentliche Reinigung
Lage des Objekts
gehobene Wohnlage, in der Nähe der Isar, in der Nähe des Englischen Gartens
Öffentliche Verkehrsmittel
Umgebung
Wohnen in München Herzogpark
Einkaufsmöglichkeiten:
Apotheke, Feinkostgeschäft, Bäcker, Supermarkt, Blumengeschäft, Metzger
Essen und Trinken:
Eisdiele, Restaurant
Energieausweistyp: Bedarfsausweis
Wesentliche Energieträger: KWK regenerativ, KWK fossil
Energieeffizienzklasse: B
Endenergiebedarf: 66,60 kWh/(m²*a)
