Herzogparksuiten - Außergewöhnlicher Wohngenuss
Der Herzogpark in München-Bogenhausen: Herrschaftliche Architektur, vornehme Geschichte.
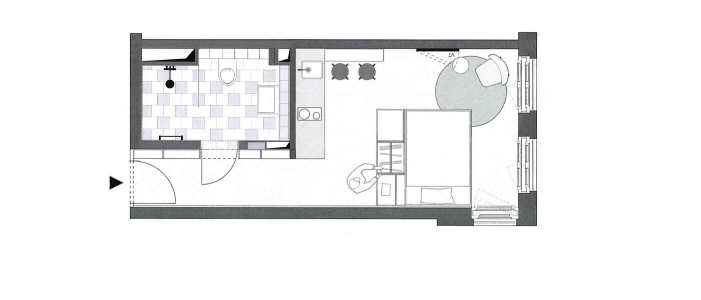
Umgeben von alten Bäumen, eingebettet zwischen Isar, Montgelas- und Oberföhringer Straße. In dieser Kulisse bieten wir mit den Herzogparksuiten einen außergewöhnlichen Wohngenuss. Angeboten werden durchdachte, einzigartige 1- und 2-Zimmer-Suiten mit Wohnflächen von rund 26 bis 90 m², entworfen vom renommierten Münchner Büro steidle architekten. Enstanden im ehemaligen Park des französischen Generalkonsulats.
Repäsentativer und großzüger Eingangsbereich mit edlen Holztüren, Wandgestaltung in Stucco-Technik, feinem Terrazzo sowie eleganter Beleuchtung - zeitgemäßes und elegantes Design. Eichenholzparkett geölt, im Fischgrat verlegt. Fußbodenheizung in allen Räumen. Hoher Schallschutz und kontrollierte Wohnraumbelüftung. In sämtlichen Suiten sorgen bodentiefe Fenster für ein ganz besonders lichtes und freies Wohngefühl. Elegante Bäder mit stilvollen Wand- und Bodenfliesen, die hochwertigen modernen Armaturen, die eleganten Einbaumöbel oder die vielen weiteren exquisiten Ausstattungskomponenten.
Sehr praktisch: Es kann eine wöchtentliche Reinigung und ein 14-tägiger Wäschewechsel hinzugebucht werden.
Ausstattung:
Doppelbett 160 x 200 cm, Schrank, Stuhl
Bad mit bodengleicher Dusche
Flachbildfernseher, Kabel-TV, Kosten in der Miete enthalten
inkl. Bettwäsche, Handtücher und Föhn
inkl. Bügelbrett, Bügeleisen und Staubsauger
Internet Flatrate (mit bis zu 200 Mbit/s)
Kosten in der Miete enthalten
monatliche Kosten 160,- €
Kosten nicht in der Miete enthalten
Optional: Tiefgarage (Einzelstellplatz) 160,- € /Monat; wöchentliche Reinigung Kosten 120,- €
Lage des Objekts
gehobene Wohnlage, in der Nähe der Isar, in der Nähe des Englischen Gartens
Öffentliche Verkehrsmittel
Umgebung
Wohnen in München Herzogpark
Einkaufsmöglichkeiten:
Apotheke, Bäcker, Blumengeschäft, Feinkostgeschäft, Metzger
Essen und Trinken:
Eisdiele, Restaurant
Energieausweistyp: Bedarfsausweis
Wesentliche Energieträger: KWK regenerativ, KWK fossil
Energieeffizienzklasse: B
Endenergiebedarf: 66,60 kWh/(m²*a)
