Ihre Kontaktperson
Dr. Cornelia Koronakis
Dr. Cornelia Koronakis
Immobilienberaterin | Verkauf
089 - 340 823-546
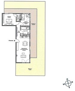
Zimmer
3
Wohnfläche ca.
104 m²
Kaufpreis
€ 1.390.000,-
Provision
2,975% inkl. 19% MwSt.
Lage
81379 München

Thalkirchen: Modern Living an der Isar – Design-Gartenwohnung in exklusiver Lage


Kennung:
70309
Objektart:
Erdgeschosswohnung
Wohnfläche ca.:
104 m²
Baujahr:
2011
Gartenfläche ca.:
149 m²
Wohngeld:
458 €
Zustand:
Neuwertig
Schlafzimmer:
2
Badezimmer:
2
Gäste-WC:
Ja
Anzahl Terrassen:
1
Keller:
Ja
Einbauküche:
Ja
Etage:
EG
Bodenbelag:
Parkett, Fliesen

Provision

Käuferprovision: 2,975% inkl. 19% MwSt.

Top-Highlights


  • Loftartiges Wohnen
  • Großzügige Terrasse, privater Garten
  • TG- Einzelstellplatz mit E-Ladestation

Beschreibung


Diese außergewöhnliche Gartenwohnung vereint luxuriöse Wohnkultur, zeitlose Architektur und einen exklusiven Rückzugsort im Herzen Münchens. Das Objekt wurde 2011 erbaut und 2023 mit viel Liebe zum Detail vollständig saniert – mit höchstem Anspruch an Design, Materialqualität und Wohnkomfort.

Eingebettet in ein modernes Ensemble mit nur sechs Parteien auf einem sonnigen Eckgrundstück, bietet diese 3-Zimmer-Wohnung einen unvergleichlichen Blick ins Grüne und ein Wohnambiente auf höchstem Niveau. Bodentiefe Fenster und ein offener Grundriss schaffen ein lichtdurchflutetes Ambiente, das moderne Ästhetik mit behaglicher Wohnlichkeit verbindet. Das Herzstück bildet der weitläufige Wohn- und Essbereich mit hochwertiger Designküche — ein Raum für genussvolle Abende und entspannte Momente mit Blick ins Grüne.
Das Master-Schlafzimmer mit Bad en Suite und direktem Zugang zum Garten bietet einen Rückzugsort, der Ruhe und Geborgenheit ausstrahlt. Ein weiteres vielseitiges Zimmer – ideal als Gäste- oder Arbeitsbereich – sowie ein zweites hochwertig ausgestattetes Badezimmer runden das Raumangebot ab.
Der private Garten, der die Wohnung auf drei Seiten umschließt, ist ein seltenes Highlight: nicht einsehbar, liebevoll angelegt und mit großzügiger Terrasse – ein persönliches Refugium für sonnige Stunden im Grünen - ein Ort zum Durchatmen, Ankommen und Leben.

Ein Tiefgaragen-Einzelstellplatz mit E-Ladestation und ein großes Kellerabteil ergänzen dieses Angebot.

Ein Zuhause für höchste Ansprüche – exklusiv, stilvoll und in jeder Hinsicht außergewöhnlich.

Wohnung 1.390.000€ + TG-Einzelstellplatz 35.000€ = 1.425.000€

Ausstattung



    Die Wohnung wurde 2022 kernsaniert und präsentiert sich in neuwertigem Zustand mit höchstem Designanspruch. Ein dimmbares Beleuchtungskonzept mit Leuchten von Occhio und Vibia schafft in allen Räumen eine stilvolle Atmosphäre. Vorhänge von Bömler Einrichtung und Blisses ergänzen die Jalousien und verleihen den Räumen elegante Behaglichkeit.
    Echtholz-Schlossdielen, fugenlos verlegt ohne Fußleisten, sowie raumhohe, rahmenlose Türen von Pura Porta betonen die klare Linienführung. Die Bäder in Betonspachteltechnik mit Dornbracht-Armaturen und bodengleichen Regenduschen vollenden das moderne, luxuriöse Wohnkonzept.

    Wohn- & Essbereich
    • Hochwertiges Designmobiliar von Who’s Perfect und PORRO
    • Sofa Groundpiece von Flexform
    • Design-TV von Samsung
    • Sessel von Manufaktum
    • Essstühle von Vitra
    • Maßgefertigter Esstisch aus Nussbaum
    • Limitierte Galerie-Fotokunst von LUMAS
    • Maßgefertigte Schreinerarbeiten
    • Edles Lichtkonzept mit Designleuchten von Vibia

    Küche
    • Exklusive bulthaup-Küche mit Dampfgarer
    • Premium-Geräte von Gaggenau
    • Durchdachtes Stauraum- & Beleuchtungskonzept

    Schlafbereiche
    • Maßgefertigte Einbauten vom Schreiner Oppenheimer
    • Designerbett und hochwertige Texturen
    • Akzentkunst von LUMAS

    Badezimmer
    • Armaturen von Dornbracht
    • Sanitärkeramik von Geberit
    • Beton-Ciré Wand- & Bodenflächen
    • Licht von Occhio
    • Integrierte Bosch Waschmaschine & Trockner

    Terrasse & Garten
    • VITRA-Outdoor-Möbel
    • Großzügige Terrasse, privater Garten auf drei Seiten
    • Automatische Bewässerungsanlage

    Komfort & Extras
    • Tiefgaragenstellplatz mit E-Ladestation
    • Großes Kellerabteil

    Die gesamte Möblierung mit Einbauküche und Ausstattung wie Sofa, TV, Besteck, u.v.m. sind im Kaufpreis enthalten. Eine detaillierte Inventarliste wird beim Kauf bereitgestellt.

    Lage


    Lage – Exklusive Ruhe am Wasser, mitten in München

    Willkommen in einer der seltensten Wohnlagen Münchens: direkt am idyllischen Mühlbach, umgeben von altem Baumbestand und den weiten Isarauen. Hier verschmelzen Natur, Ruhe und urbaner Stil zu einem Wohngefühl, das seinesgleichen sucht.
    Die Isargärten bieten eine grüne Oase mit absoluter Privatsphäre – und dennoch erreichen Sie Restaurants, Cafés, Einkaufsmöglichkeiten sowie Sport- und Freizeiteinrichtungen bequem zu Fuß. Der Tierpark Hellabrunn liegt vis-à-vis und verleiht dieser Lage einen besonderen, fast magischen Charme.

    Mit der U3 ab Thalkirchen gelangen Sie in wenigen Minuten zum Marienplatz – exklusiv wohnen, zentral leben, im Herzen der Natur.
    Ein Refugium für anspruchsvolle Stadtmenschen, die das Beste aus beiden Welten suchen.

    Energieangaben


    Heizungsart:
    Fußbodenheizung
    Energieeffizienz-Klasse:
    B
    Energieverbrauchs-Kennwert:
    60,9 kWh/(m²*a)
    Wesentliche Energieträger:
    Gas
    Energieausweis-Typ:
    Verbrauchsausweis
    Baujahr:
    2011

    Ermitteln Sie Ihren persönlichen Zinssatz


    Sonstiges


    Die Wohnung ist derzeit befristet bis 30.09.2026 über Mr. Lodge vermietet. Sie ist bestens geeignet als Kapitalanlage oder auch zur Eigennutzung. Gerne beantworten wir Ihre Fragen in einem persönlichen Gespräch.

    Als führende Agentur für Wohnen auf Zeit steht Mr. Lodge auch den neuen Eigentümern oder Kapitalanlegern mit Beratung, Vermietung und Dienstleistungen rund um die Immobilie gerne zur Verfügung.

    Mr. Lodge bietet diese Immobilie im Allein-Auftrag an.

    Bitte beachten Sie, dass das digitale Exposé eine erste Übersicht bieten soll und dass alle Angaben auf Auskünften des Eigentümers bzw. Auftraggebers beruhen und wir hierfür keine Haftung übernehmen.

    Exposé anfordern


    Mr. Lodge GmbH verarbeitet die von Ihnen zur Verfügung gestellten personenbezogenen Daten gemäß der Mr. Lodge-Datenschutzerklärung.

    Cookie Hinweis
    Diese Webseite verwendet Cookies, um Inhalte zu personalisieren, Werbungen anzupassen und zu messen und eine sichere Erfahrung zu bieten. Indem Sie die Schaltfläche "Alles zulassen und fortsetzen" betätigen, stimmen Sie zu, dass Daten über Cookies gesammelt werden.
    Bitte aktivieren Sie Cookies in ihren Browsereinstellungen!